Skip to main content
/

Site Navigation

Your Account

Choose Language

Introduction

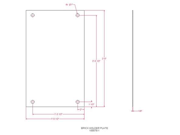
Materials Needed:Steel:* .25x2 Flat: 12” (1) – Controller Mount* .25x3 Flat: 6”(1) Controller Mount Bottom Piece* .25x6 Flat: 12” (1) Valve Mount* .25x6 Flat: 15” (1) Controller Mount* .125x29x13.5 Sheet (1) Dirt Keeper Plate* .125x29x17.5 Sheet (1) Brick Holder PlateSketchup Model

Parts

No parts specified.

  1. Punch all holes. Punch all holes.
    • Punch all holes.

  2. Punch all holes
    • Punch all holes

  3. Punch all holes, or drill if necessary.
    • Punch all holes, or drill if necessary.

  4. Find your controller box and locate its mounting holes on the back.
    • Find your controller box and locate its mounting holes on the back.

    • Place it on top of the 6x15 plate so it is square and the top hole is about ½” away from the top. Transfer punch the holes on the controller box to the plate.

    • Drill those 1/4" holes.

    • You can drill them a little bigger (up to 5/16") if you'd like, as it's difficult to get the holes perfectly aligned.

    • Punch the holes in the bottom piece.

  5. Weld the bottom piece to the large plate.
    • Weld the bottom piece to the large plate.

    • Make sure it's square

    • Weld the flatbar on the back.

    • Make sure it's square.

Finish Line

Dozuki System

Member since: 09/24/2009

1 Reputation

34 Guides authored

0 Comments

Add Comment

View Statistics:

Past 24 Hours: 0

Past 7 Days: 1

Past 30 Days: 1

All Time: 198