Skip to main content
/

Site Navigation

Your Account

Choose Language

You're viewing a previously published version of this guide.  View latest version

Older Newer

Introduction

  1. Torch the guard sheet metal as in the image. It doesn't need to be exact. Note: the shape shown is centered.
    • Torch the guard sheet metal as in the image. It doesn't need to be exact.

    • Note: the shape shown is centered.

    • Weld the top and side 2x2 angle pieces to it as shown.

  2. Not all holes will be accessible with a punch. Torch the rest. Not all holes will be accessible with a punch. Torch the rest. Not all holes will be accessible with a punch. Torch the rest.
    • Not all holes will be accessible with a punch. Torch the rest.

  3. Torch the hole for mounting the motor in the 8" piece of 4x4 angle. Grind off the slag. Double check that the hole is large enough by putting on the motor and making sure the raised portion in the center goes all the way thru.
    • Torch the hole for mounting the motor in the 8" piece of 4x4 angle. Grind off the slag.

    • Double check that the hole is large enough by putting on the motor and making sure the raised portion in the center goes all the way thru.

    • You can torch separate holes for the bolts, or do one large, odd shaped one like is pictured.

    • Torch whichever holes you couldn't access with the punch

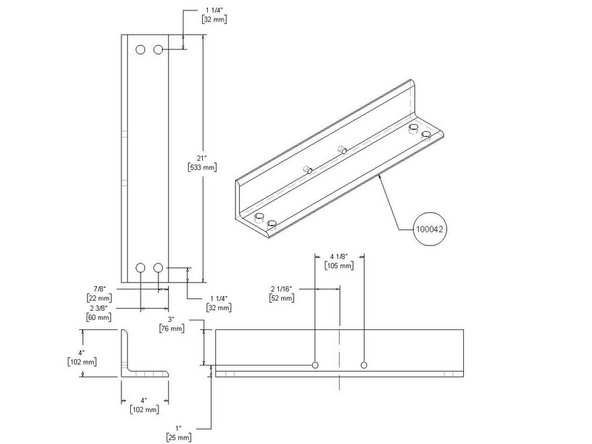
  4. Weld the bottom 2x2 to the 21" 4x4. Weld the two 4x4 angle pieces together as pictured, ensuring they are perfectly flush and square. Skip around while welding so it doesn't warp one way or another.
    • Weld the bottom 2x2 to the 21" 4x4.

    • Weld the two 4x4 angle pieces together as pictured, ensuring they are perfectly flush and square.

    • Skip around while welding so it doesn't warp one way or another.

    • Grind off the top weld linking the 4x4's so the bearing will be able to sit flush on it

    • Also grind off near the bolt holes on the bottom.

  5. Weld the rebars onto the underside of the mount.
    • Weld the rebars onto the underside of the mount.

    • Weld the guard to the top side of the mount.

Dozuki System

Member since: 09/24/2009

1 Reputation

34 Guides authored

View Statistics:

Past 24 Hours: 0

Past 7 Days: 1

Past 30 Days: 1

All Time: 155